Mr Hai

Client: Mr Hai

Location: Ha Long city, Quang Ninh province

Category project: Nhà liền kề

Year project: 2019

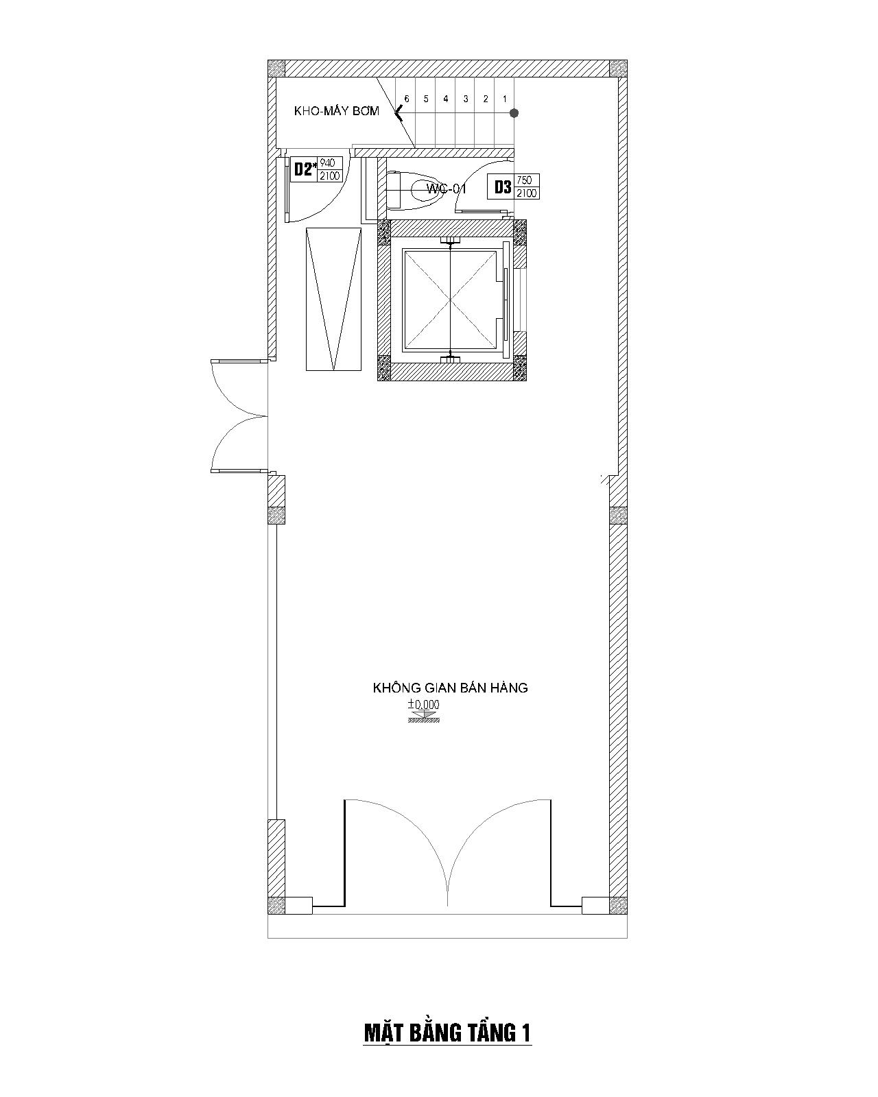
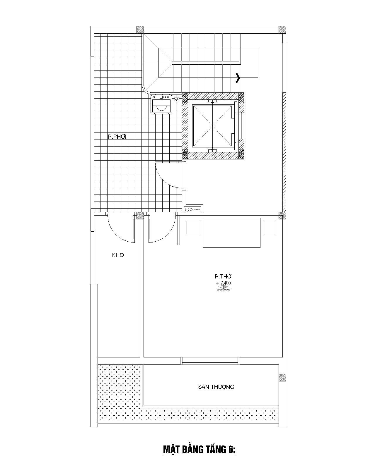
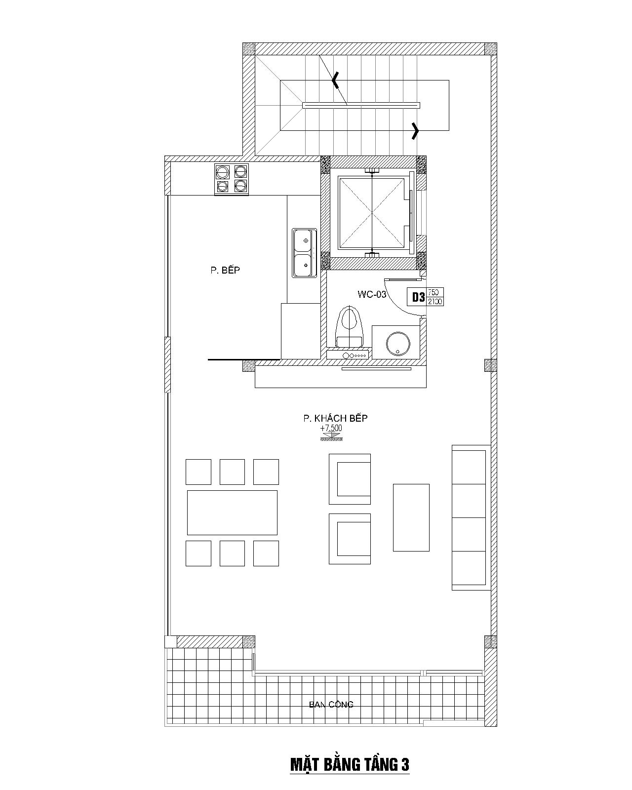
Nằm tại vị trí mặt đường với nhiều tiếng ồn, kết hợp với khai thác các tầng dưới làm dịch vụ cho thuê kinh doanh. Với mục đích trên, VAV đã xử lý các không gian bên dưới dạng không gian mở, thông qua hệ thống cửa kính và cây xây của các khoảng ban công . Lên tới khối ngủ toàn bộ mặt phía trước được xử lý để phù hợp với việc ngăn tiếng ồn và đảm bảo điều kiện ánh sáng cho phòng ngủ của các thành viên trong gia đình.